Ihr neues Büro direkt am Bahnhof Winterthur
Vollausbau
Plug & Work
Topmoderne und vollausgebaute Büroflächen mit Teeküche, Sitzungszimmern, Lüftung und Kühlung.
Weniger Details
Mehr Details
Erweiterter Grundausbau
Flexibilität Plus
Die Flächen im erweiterten Grundausbau bieten maximale Flexibilität und ermöglichen ein vielfältige Nutzung. Der erweiterte Grundausbau verfügt bereits über einen Doppelboden inkl. Stromverkabelung, hybride Deckensegel (Lüftung & Kühlung), sowie ausgebaute Sanitäranlagen.
Lassen Sie sich von unseren 3 Raumvisionen inspirieren:
Büro
Gesundheit
Bildung
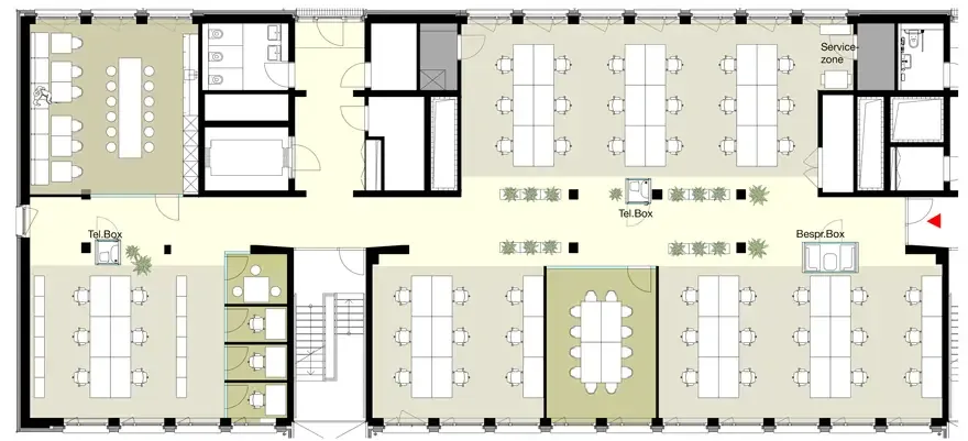
Teilfläche A, 4. Obergeschoss, 478 m²
Arbeitsplätze: 38
Arbeitsplätze: 23
Arbeitsplätze: 48
Hybrid
Klassisch
MaxPax
Die Flächen können durch das Zusammensetzen von Teilflächen beliebig erweitert werden.
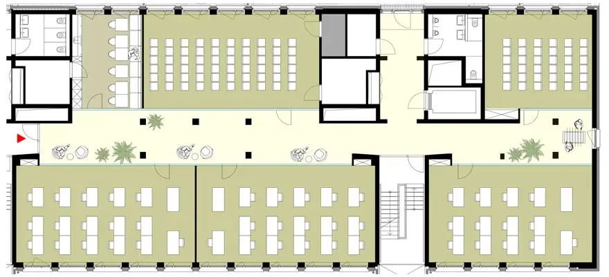
Teilfläche C, 4. Obergeschoss, 481 m²
Die Flächen können durch das Zusammensetzen von Teilflächen beliebig erweitert werden.
Teilfläche C, 4. Obergeschoss, 481 m²
Die Flächen können durch das Zusammensetzen von Teilflächen beliebig erweitert werden.
